
作者:admin 發布時間:2021-8-5 11:46:54 瀏覽次數:306次
關于空調底座彈簧減振器選型的幾點說明
空調底座彈簧減振器的準確選配、定位、安裝能很大程度提高減振效率,延長風機與電機的使用壽命。
由于風機、電機底座安裝要求高,且不同型號的排列組合多,致使其無法采用固定方式安裝減振器,也給其選項、定位帶來一定實際困難,我們金諾公司就解決此問題的方案作幾點說明。
確定減振器的選型一般分二個步驟進行。首先是裝置整體質心的求算,然后根據質心位置依據力矩補償原則進行定位。
一、多質點組合質心的求算
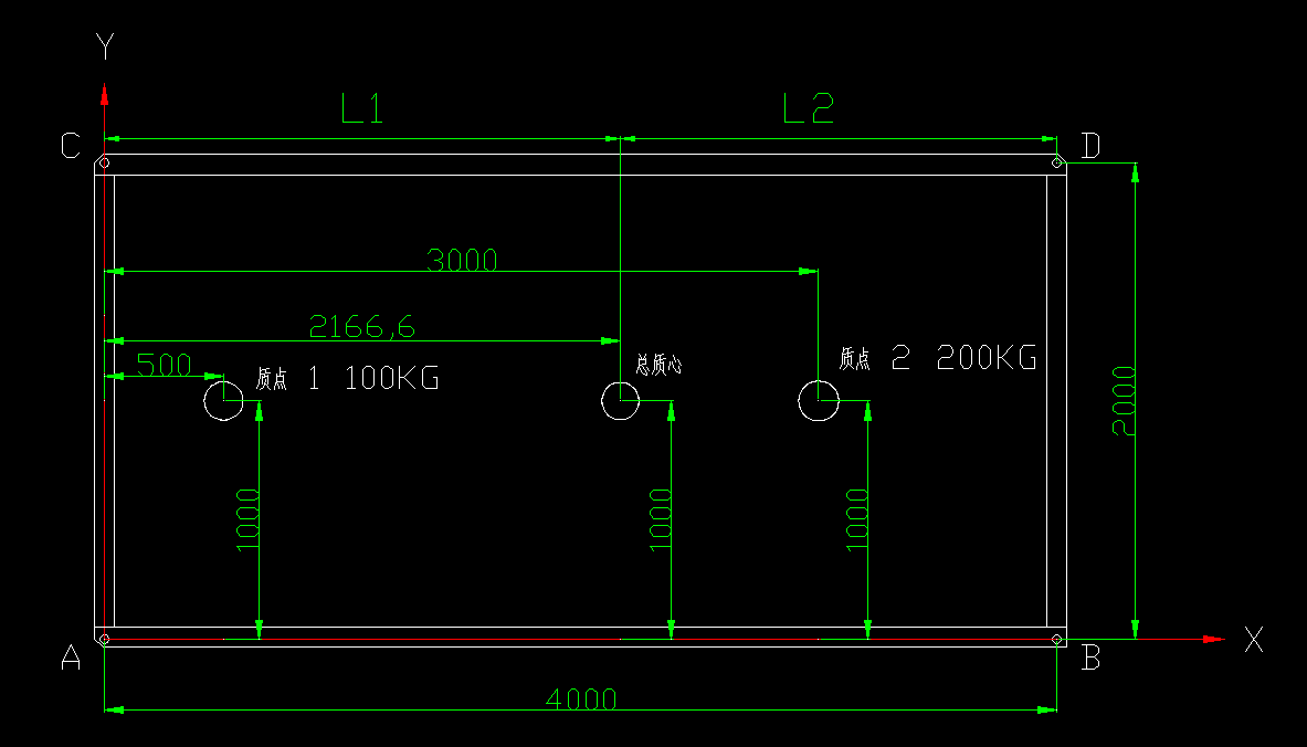
求算的理論基于知道每個部件的重心位置,選擇合適的參考點,并生成X-Y直角坐標系,確定每個部件的重心坐標。通過正交分解計算出每個部件關于X軸的力矩及關于Y軸的力矩。
力矩M(X)=力矩長度L(X)*質心重量(m)
再分別將X軸和Y軸求和,得到X軸和Y軸的總力矩數,兩個數分別除以物體(各質點)的總質量,即又分別得到X軸向,Y軸向的質心坐標。
根據工程力學也可表示為:位于平面上點(Xi,yi)處的質量為mi(i=1,2,3......)的幾個質點所構成的質點系質心的坐標(Xc,Yc)的計算公式為
Xc=M(X)/m Yc= M(Y)/m

例如圖中 Xc=(500X100+3000X200)/300=2166.6
Yc=(1000X100+1000X200)/300=1000
故該組合質心位于(2166.6,1000)
更多質點求質心的方法類推。
二、彈簧最佳載荷的選配及底座定位
彈簧最佳載荷的選配需考慮彈簧剛度、變形量等要求,結合風機轉速選擇合適的運行重量參數,再根據載荷進行減振器的選配。
如設定風機轉速為1450,選擇運行重量系數為1.3,則上例中載荷總重量為(100Kg+200Kg)X1.3=390Kg,則各彈簧總載荷為390Kg。
減振器的定位基于一個原則,即根據質心分解成X軸及y軸兩個維度,通過調整減振器載荷或調整接觸部反力(f)的力矩平衡。
以下各例建立在底框足夠有強度的基礎上推算的。
1.四個減振器
仍以上圖為例,

質心位于(2166.6,1000)對于Y軸向力矩相等,X軸則應以調整載荷為宜。
L1=2166.6 L2=1833.4
F(A)xL1=f(B)xL2 F(A)+f(B)=390kg/2
得到:F(A)=89.4Kg f(B)=105.6Kg
即A點C點支撐部位力為87.4Kg,建議選型90Kg
B點D點支撐部位力為105.6Kg,建議選型110Kg
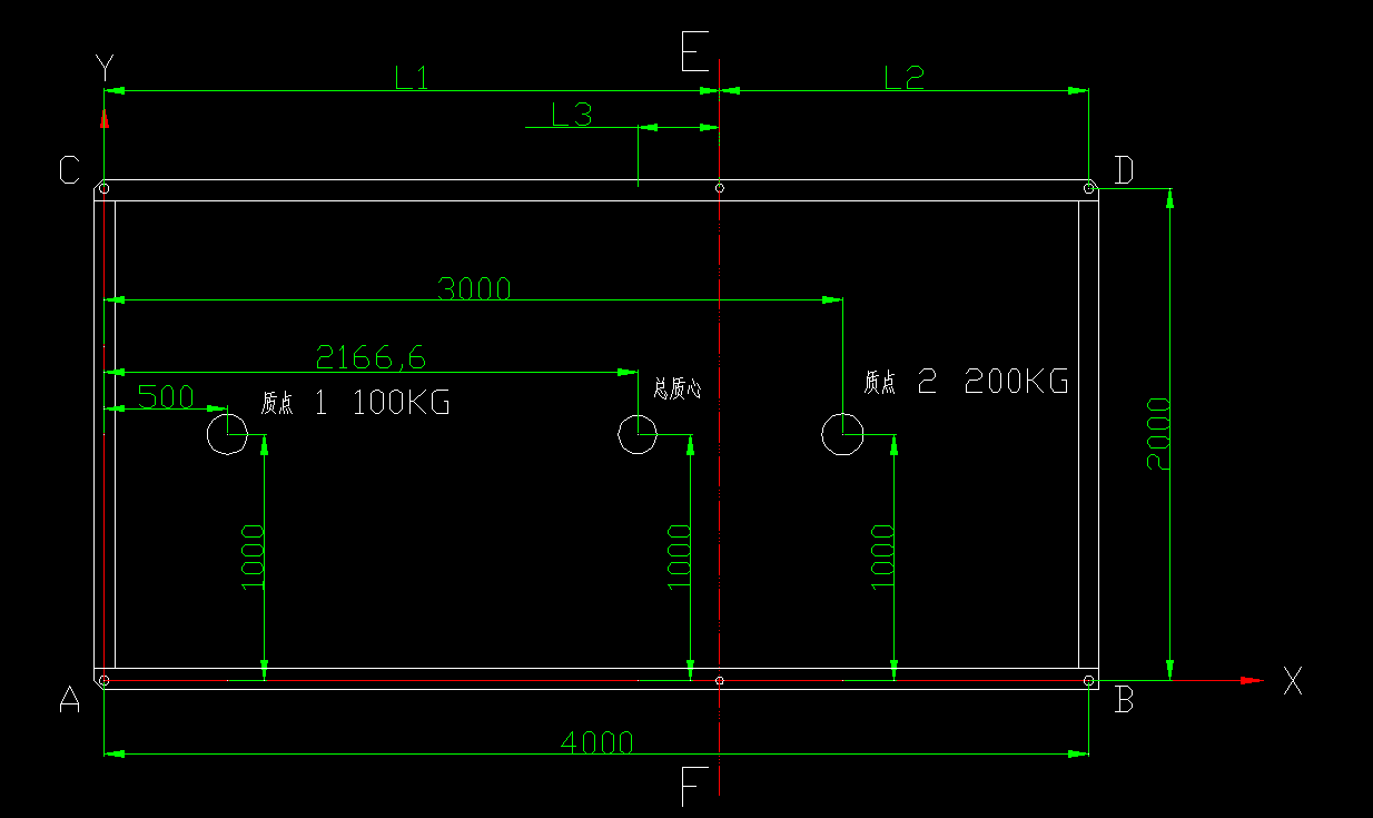
2.六個減振器的搭配
在超過4個減振器的選型,一般使用相同型號的減振器,求算接觸部反力的力矩平衡點,得出減振器的相應位置。
如上圖中每個減振器配重為390/6=65Kg
則應滿足A、C點的質心力矩總和與B、D、E、F點質心力矩總和相等。
本例中Y軸不需考慮配重。
則X軸向則應滿足
F(c)xL1=f(E)*L3 +f(D)xL2
由于同種類型減振器F(c)=f(E)=f(D)
故應滿足L1=L2+L3 得 L2=333.2
E、F點應選擇在(2499.8,2000)(2499.8,0)處
以上兩例設定為Y軸向力矩相同,在實際應用中質心X,Y軸向不一定均分相同,亦可通過力矩補償原則進行選配,在此不再贅敘。
吳江市金諾通風減震設備廠成立于2008年,是一家專業設計制造產業機械防震產品的公司,公司以JSN品牌營銷全球,通過多年的發展,現已成為中國減振器行業的翹楚品牌。公司充分利用多年的設計、生產經驗,對產品進行優化整合,力求品種齊全,質量穩定,企業自身擁有完善的生產設備及檢測能力,能根據用戶的要求進行定制特殊結構的各類減震產品。公司主要產品有彈簧減振器、橡膠減振器、空氣減振器、橡膠軟接頭、金屬軟管、波紋補償器等,其產品適用于水泵、風機、冷水機組、柴油機、冷卻塔、變壓器、風力發電等設備的基礎減震以及各類風機盤管,新風機組、風管等吊裝減震。波紋管產品及橡膠軟接頭通用于自來水、電力、鋼鐵、石油、化工、造紙、印刷等行業。公司經過13年來的發展,通過資源整合,不斷加快向規模化,產業化方向進軍的步伐,在未來,金諾將不斷提升自身研發和生產能力,全力打造成為中國減振器行業領導第一品牌,并將JSN品牌推向全球。


a>